螺紋模具的設計與制造
已有人閱讀此文 - -注塑產品螺紋格外螺紋和內螺紋二種,精密度不太高的外螺紋一般用哈夫塊成形,而內螺紋則大多數必須卸螺紋設備。
今日簡易詳細介紹內螺紋出模方式,關鍵詳細介紹齒輪的測算和挑選。
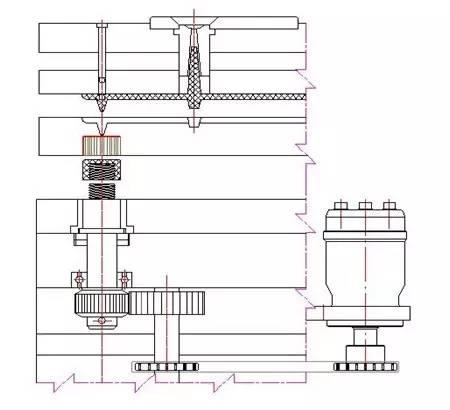
一、卸螺紋設備歸類
1、按姿勢方法分
① 螺紋型芯旋轉,推板促進商品擺脫;
② 螺紋型芯旋轉另外倒退,商品當然擺脫。
2、按驅動器方法分
① 液壓缸 齒輪齒條


② 油電機/電動機 傳動鏈條

③ 齒輪齒條 光潔度齒輪

④ 來福線螺帽


二、設計方案流程
務必把握商品的下列數據信息(見下面的圖)
①“D”――螺紋外
②“P”――螺紋牙距
③“L”――螺紋牙長
④ 螺紋規格型號/方位/個數
⑤ 凹模總數

2、明確螺紋型芯旋轉匝數:
U=L/P Us
U 螺紋型芯旋轉匝數
Us 安全性能,為確保徹底旋出螺紋所加容量,一般取0.25~1
3、明確齒輪變位系數、齒數和傳動比:
變位系數決策齒輪的齒厚,齒數決策齒輪的直徑,傳動比決策嚙合齒輪的轉速比。
在這以前必須講一下齒輪的主要參數和嚙合標準。
三、齒輪的主要參數和嚙合標準
模貝的卸螺紋組織中大多數運用的是直齒圓柱齒輪,并且一般全是漸開線齒輪直齒圓柱齒輪,因而下邊就以漸開線齒輪直齒圓柱齒輪為研究對象。
1 齒輪傳動系統的基礎規定
① 規定瞬時速度傳動比穩定不會改變
② 規定有充足的承載力和較長的使用期限
2、 直齒圓柱齒輪嚙合運動定律
兩齒輪廓無論在哪里觸碰,過點接觸所做的兩嚙合齒輪的公法線,務必與二輪心連心線交叉于一點“C”,那樣才可以確保齒輪的瞬時速度傳動比不會改變。將全部“C”點連起來就變成兩個外切圓,稱作分度圓,分度圓圓心距即齒輪圓心距。詳細下面的圖

3、漸開線齒輪直齒圓柱齒輪主要參數
齒厚------“d”表明
分度圓直徑--------“S”表明
齒輪齒距--------“p”表明
齒輪齒厚--------“sk”表明
齒輪齒槽寬--------“ek”表明
齒輪齒數--------“z”表明
齒輪變位系數--------“m”表明
齒輪齒輪壓力角--------“?弧北硎?
齒輪傳動比--------“i”表明
齒輪管理中心距--------“l”表明

來源于:模貝人雜志期刊

